Adidas阿迪达斯上海品牌展厅设计毕业论文
摘 要
本人的毕业设计课题为《Adidas阿迪达斯上海品牌展厅设计》,本文主要研究的是空间设计与陈列、功能设置与布局、色彩与主题表现、照明要求与展厅设计效果。首先,对Adidas阿迪达斯品牌的历史背景、社会背景、发展背景进行分析。其次,运用功能、文献、实证研究法,对Adidas阿迪达斯企业国内外相关展示方式的设计特点、空间分布、色彩运用进行探讨。最后,结合设计原则、文化、设计理念,进行设计策略分析,将Adidas阿迪达斯上海品牌展厅的品牌和室内展示创新展现给参观者,给他们带来独特和印象深刻的体育用品的观展体验。
关键词:Adidas阿迪达斯 展厅设计 设计原则 体育用品
Design of Adidas Shanghai Brand Exhibition Hall
Abstract
My graduation design is "the design of the Adidas Shanghai brand exhibition hall". This article mainly studies the design and display of space, function and layout, color and theme expression, visual effect and other aspects of design. Ding's requirements and effects. First, analysis of the historical background, social background and development background of the Adidas brand, second, The design features, spatial distribution and color application of Adidas enterprises at home and abroad are discussed by means of function, literature and empirical research. Finally, combining design principles, culture, design, concept, design strategy analysis, the design of Adidas Shanghai brand hall is a new design. The new and innovative way to adapt to Adidas style allows visitors to display sporting goods in different ways.
Key Words:Adidas;exhibition;hall;design;value
目 录
摘要…………………………………………………………………………………I
ABSTRACT…………………………………………………………………………II
第一章 绪论………………………………………………………………………1
1.1 Adidas阿迪达斯上海品牌展厅研究背景…………………………………1
1.2 Adidas阿迪达斯上海品牌展厅研究目的…………………………………1
1.2.1 扩大阿迪达斯品牌的影响……………………………………………1
1.2.2 促进阿迪达斯产品的销售……………………………………………1
1.2.3 展示品牌未来发展……………………………………………………1
1.3 Adidas阿迪达斯上海品牌展厅研究的意义………………………………1
1.4 Adidas阿迪达斯上海品牌展厅研究内容…………………………………2
1.4.1 空间设计与陈列………………………………………………………2
1.4.2 功能设置与布局………………………………………………………2
1.4.3 色彩与主题表现………………………………………………………2
1.4.4 照明要求与效果………………………………………………………3
1.5 Adidas阿迪达斯上海品牌展厅研究方法…………………………………3
1.5.1 文献研究法……………………………………………………………3
1.5.2 功能研究法……………………………………………………………3
1.5.3 实证研究法……………………………………………………………3
1.6 国内外Adidas阿迪达斯的展厅案例分析………………………………3
1.6.1国外Adidas阿迪达斯的展厅案例分析………………………………3
1.6.2国内Adidas阿迪达斯的展厅案例分析………………………………4
第二章 Adidas阿迪达斯上海品牌展厅设计理念分析…………………6
2.1 Adidas阿迪达斯上海品牌展厅文化和设计理念…………………………6
2.1.1 展厅文化理念…………………………………………………………6
2.1.2 展厅设计理念…………………………………………………………6
2.2 Adidas阿迪达斯上海品牌展厅设计原则…………………………………6
2.2.1 空间设计与Adidas阿迪达斯文化统一……………………………6
2.2.2 空间展示方式与设计元素的标志性…………………………………6
2.2.3 展示氛围设计的整体性………………………………………………7第三章 Adidas阿迪达斯上海品牌展厅设计策略分析…………………9
3.1 Adidas阿迪达斯上海品牌展厅的整体设计构想…………………………9
3.1.1 展厅功能分区设计……………………………………………………9
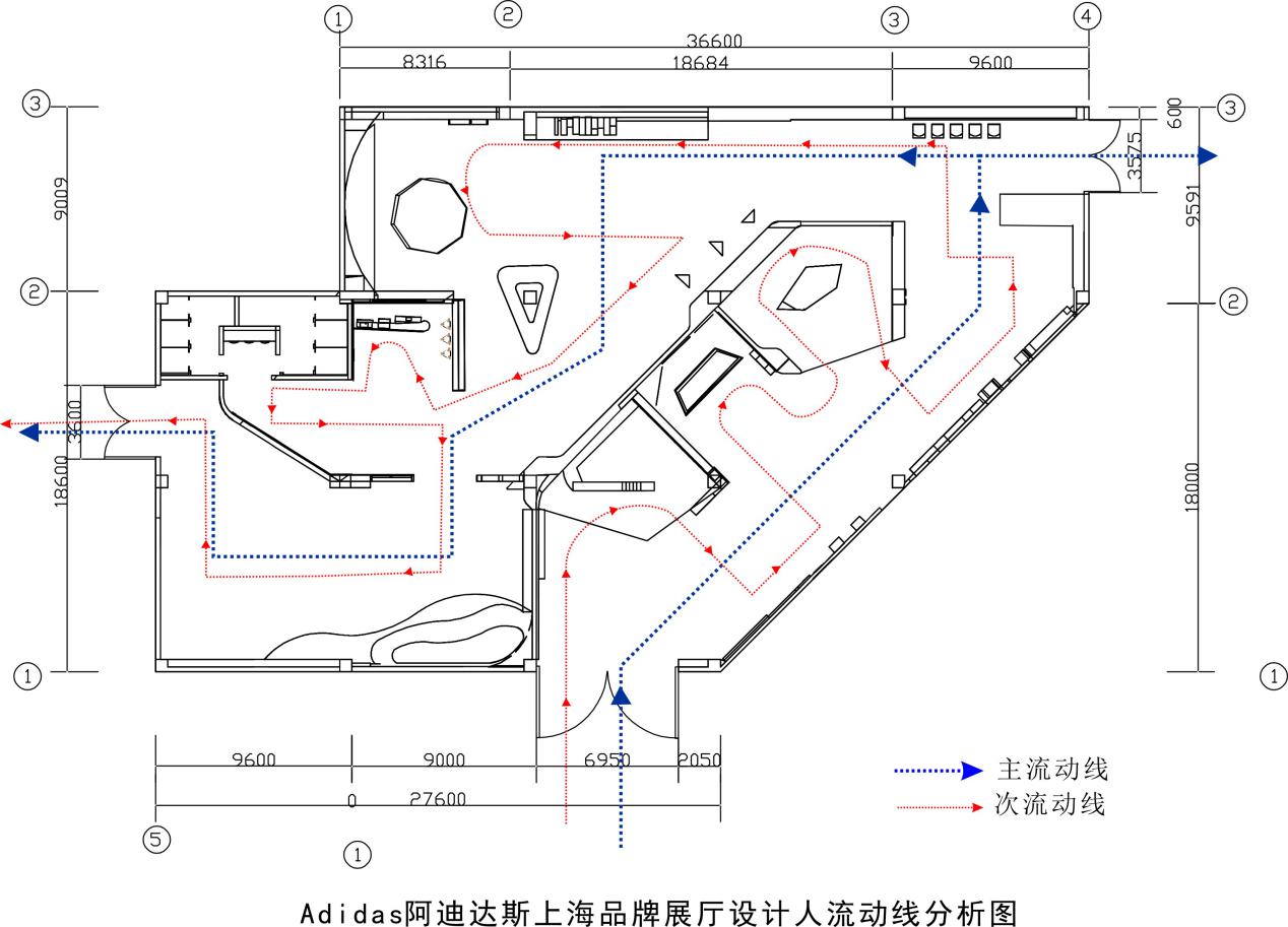
3.1.2 展厅人流动线…………………………………………………………9
3.1.3 展厅展示灯光…………………………………………………………10
3.1.4 展厅色彩搭配设计……………………………………………………10
3.2 Adidas阿迪达斯上海品牌展厅设计手法和技术应用……………………10
3.2.1 同一性的设计风格……………………………………………………10
3.2.2 多样化展示方式………………………………………………………10
3.2.3 丰富的互动体验模式…………………………………………………10
第四章 Adidas阿迪达斯上海品牌展厅设计方案分析…………………11
4.1 Adidas阿迪达斯上海品牌展厅空间设计分析……………………………11
4.1.1 功能布局设计…………………………………………………………11
4.1.2 人流动线设计…………………………………………………………11
4.2 Adidas阿迪达斯上海品牌展厅室内灯光及色彩与材质分析……………12
4.2.1 展厅灯光分析…………………………………………………………12
4.2.2 展厅色彩运用…………………………………………………………13
4.2.3 展厅材质运用…………………………………………………………14
4.3 Adidas阿迪达斯上海品牌展厅空间展示设计分析………………………15
4.3.1 展厅空间塑造分析……………………………………………………15
4.3.2 展示展台设计分析……………………………………………………17
结语………………………………………………………………………………19
参考文献…………………………………………………………………………20
致谢………………………………………………………………………………21
第一章 绪论
相关图片展示:







课题毕业论文、开题报告、任务书、外文翻译、程序设计、图纸设计等资料可联系客服协助查找。
