山东烟台莱山某商场设计(方案一)毕业论文
摘 要
钢筋混凝土结构具有良好的受力性能,能充分发挥混凝土及钢筋的力学性能,比钢结构耐火时间长。本设计是一幢商场,本计算书主要为该设计的结构设计,结构设计在建筑初步设计的基础上确定结构方案;选择合理的结构体系;结构设计进行结构布置,并初步估算,确定结构构件尺寸,进行结构计算。结构计算包括荷载计算、变形验算、内力分析、内力组合及截面设计,并绘制相关的结构施工图。
关键词:框架结构;内力组合;截面设计 。
Abstract
Reinforced concrete structure with good mechanical properties and more longer fire-resistant time than steel structure can give full play to concret's and reinforcing steel's mecahnical properties.This design is a shopping mall. This calculation book is mainly about the structural design of the design. Choose a reasonable structural system; Structure layout is carried out in the structural design, and preliminary estimation is made to determine the size of structural components and conduct structural calculation. The structural calculation includes load calculation, deformation checking, internal force analysis, internal force combination and section design, and the construction drawing of relevant structures
key word: Frame structure ;Internal force combination; The cross section design.
目录
摘 要 I
Abstract II
第一章 设计任务与选型布置 1
1.1设计内容 1
1.2设计原始资料 1
第二章 确定计算简图及荷载计算 2
2.1梁柱截面尺寸的确定 2
2.2基础选型和埋置深度 3
2.3框架计算简图 3
2.4材料强度等级 3
2.5横向框架结构侧向刚度计算及侧向刚度比验算 4
2.5.1框架梁、柱线刚度计算 4
2.5.2框架侧向刚度计算 5
2.5.3横向框架侧向刚度比验算 7
2.6重力荷载计算及水平荷载计算 8
2.6.1重力荷载计算 8
2.7水平地震作用计算及剪重比验算 13
2.7.1自振周期 13
2.7.2水平地震作用及剪重比验算 14
2.7.3风荷载计算 15
第三章 框架内力计算 17
3.1水平地震作用下框架结构分析 17
3.1.1水平地震作用下框架结构侧移验算 17
3.1.2水平地震作用下框架结构内力计算(D值法) 17
3.2水平风荷载作用下框架结构分析 20
3.2.1风作用下框架结构侧移验算 20
3.2.2风荷载作用下框架结构内力计算 20
3.3 竖向荷载作用下框架结构内力分析 23
3.3.1计算单元及计算简图 23
3.3.2竖向荷载计算 23
3.3.3恒载作用下的内力计算 26
3.4侧移二阶效应的考虑 37
第四章 内力组合 38
4.1梁控制界面内力标准值 38
4.1.2恒载作用下 38
4.1.2活载作用下 40
4.1.3地震作用下 42
4.1.4风荷载作用下 43
4.2持久设计状况下梁控制截面的内力组合 46
4.3地震设计状况下框架梁端控制截面内力组合值 51
4.4 框架梁跨间最大正弯矩 54
4.4.1左来风(→)作用 55
4.4.4右震(→)作用 57
4.5柱控制截面内力组合 60
4.5.1持久状况设计 60
4.5.2地震设计状况 60
4.5.4最不利内力组合挑选 61
第五章 梁、柱截面设计 66
5.1梁截面设计 66
5.2柱截面设计 69
第六章 楼梯设计 74
6.1踏板计算 74
6.1.1计算简图 74
6.1.2荷载计算 74
6.1.3内力计算 75
6.1.4配筋计算 75
6.2休息平台板计算 76
6.1.1计算简图 76
6.2.2内力计算 76
6.3.3梯段梁TL1计算 77
6.2.4内力计算 77
6.2.5配筋计算 77
第七章 现浇楼面板设计 78
7.1楼面板示意图 78
7.3支座中点最大弯矩 79
7.4 3区格计算 80
7.5 9区格计算 81
第八章 基础设计 84
8.1基本信息 84
8.2基础底面宽度确定 85
8.3基础梁内力计算 86
8.3.1A轴 86
8.3.2B轴 91
8.4配筋计算 96
8.4.1基础梁 96
8.4.2翼板 100
第九章 PKPM软件在框架结构中的应用..........................................102
致谢 106
第一章 设计任务与选型布置
1.1设计内容
本工程为山东烟台莱山一商场设计。其内容包括建筑设计和结构设计两个部分。结构形式采用钢筋混凝土框架结构。
1.2设计原始资料
建设地点:山东烟台莱山
建筑总面积:约2000
总建筑高度:约14
总建筑层数:三层
设计使用年限:50年
建筑安全等级为二级,建筑场地为I类,地基基础设计等级为丙级;建筑抗震设防类别为为重点设防类(即丙类),抗震设防烈度为7度(基本地震加速度为0.10g地震分组为第一组。
结构选型:钢筋混凝土框架结构
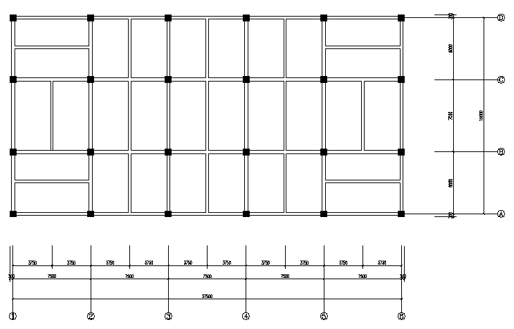
结构布置:

图1-1 结构布置图
第二章 确定计算简图及荷载计算
2.1梁柱截面尺寸的确定
根据房屋的使用功能及建筑设计的要求,进行了建筑平面、立面及剖面设计,主体结构共3 层,层高分别为4.5
、4.2
、4.2
。由于本设计中商场长度为 37.5
,跨度较小,一般 60
长度需设置防震缝,故该设计不设置防震缝,取右半部分做结构设计。
填充墙为 240
厚。
门为玻璃门,
、
为木门。
尺寸为
,M2尺寸为
,M3 尺寸为
,窗为铝合金窗,尺寸
为
,
尺寸为
,
尺寸为
,
尺寸为
,
尺寸为
。
楼盖及屋盖均采用现浇钢筋混凝土结构,楼板厚度取 120
。梁截面高度
横向框架梁,最大跨度
,
,取
,取
纵向框架梁,最大跨度
,
,取
,取
次梁,最大跨度
,取
,
由此可得到的梁截面尺寸见表 2-1,并将各层梁柱和板的混凝土强度等级。混凝土的设计强度:
(
,
)。
表2-1 梁截面尺寸
层次 | 混凝土强度 | 梁尺寸 |
1-3 | C35 | 300 |
柱截面尺寸可根据式
和式
估算,各层的重力荷载可近似取
,边柱和中柱的负载面积分别
和
。由式2-1和式2-2可得第一层柱截面面积为
边柱:
相关图片展示:







课题毕业论文、开题报告、任务书、外文翻译、程序设计、图纸设计等资料可联系客服协助查找。

700