相悦公馆住宅楼建筑结构设计毕业论文
摘 要
本文是一篇完整的相悦公馆住宅楼的建筑结构设计,设计过程严格按照规范要求执行,并借助AUTO CAD、PKPM、天正建筑、结构力学求解器这四个软件完成绘图和校核工作。
设计过程可分为两个阶段。第一阶段是建筑设计,需根据住宅楼的功能和要求布置平面结构,各个不同功能房间的尺寸可根据工程经验和实际情况给定,并绘制住宅楼的建筑施工图。第二阶段是结构设计,大致可分为四个步骤,首先,要了解工程概况、选择建筑地点、查询气象与地质资料;接下来是选择结构类型、初步估算梁柱构件的尺寸、绘制相应的计算简图、统计竖向的活荷载和恒荷载、统计水平向的风荷载和地震荷载,统计工作完成后,可得到结构的竖向和横向受荷图;第三步,进行恒载、活载、风载和地震荷载作用下的内力计算,并根据规范要求,对这四种情况进行内力组合,得到结构的最不利内力;最后,根据结构的最不利内力,进行计算与配筋,并绘制相应的结构施工图。
关键词:结构设计;荷载统计;内力计算;截面设计;配筋计算
Abstract
This graduation project is a complete architectural design of the XiangYue residential building.The design process is executed in strict accordance with the requirements of the building code, and the drawing and verification work is completed using these four softwares AUTO CAD, PKPM, TArch,and Structural Mechanics Solver.
The design process can be divided into two stages. The first stage is the architectural design. The planar structure needs to be laid out according to the functions and requirements of the residential building. Based on the engineering experience and actual conditions,the dimensions of the rooms with different functions can be determined.Then the construction drawing of the residential building could be drawn. The second stage is the structural design, which can be roughly divided into four steps. Firstly, it is necessary to overview the project , select the construction site, and inquire the meteorological and geological data.The next step is to select the type of structure, preliminarily estimate the size of beams and columns,draw the corresponding Calculate diagrams,count live and dead loads in the vertical direction,and count wind loads and seismic loads in the horizontal direction. After these statistical work, vertical and lateral load diagrams of structures can be obtained.Then,calculate the internal forces under the action of live load, wind load and earthquake load, and combine the internal forces of these four conditions according to the specifications we can obtain the most unfavorable internal forces of the structure; Finally, calculating and giving appropriate amount of reinforcement are based on the most unfavorable internal forces of the structure and draw the corresponding construction drawings in the end.
Key Words:structural design; load statistics; internal force calculation; section design; reinforcement calculation
目 录
摘 要 I
Abstract II
第1章 绪论 1
第2章 设计资料及相应内力统计与组合 2
2.1 设计资料 2
2.2 结构选型 2
2.3 梁柱截面尺寸估算 3
2.4 确定计算简图 3
2.5 荷载统计 5
2.5.1恒载标准值 5
2.5.2 活载标准值 7
2.6 竖向荷载作用下的框架受荷图 7
2.7 风荷载计算 11
2.7.1 集中风荷载标准值计算 11
2.7.2 柱抗侧移刚度D的计算 13
2.7.3 风荷载作用下的位移验算 14
2.8 水平地震作用计算 14
2.9 内力计算 16
2.9.1 恒载标准值作用下的框架内力计算 16
2.9.2 横向风荷载作用下的框架内力计算 29
2.9.3 活载标准值作用下的框架内力计算 37
2.9.4 水平地震作用下的框架内力计算 37
2.10 内力组合 44
2.10.1 竖向荷载作用下的梁端弯矩调幅计算 44
2.10.2 控制截面处内力值的计算 44
2.10.3 内力组合 46
第3章 各构件的计算与设计 52
3.1框架柱截面设计 52
3.1.1 轴压比验算 52
3.1.2 截面尺寸复核 52
3.1.3 框架柱正截面受弯承载力计算 52
3.1.4 垂直于弯矩作用平面的受压承载力计算 54
3.1.5 斜载面受剪承载力计算 54
3.1.6 裂缝宽度验算 55
3.2 框架梁截面设计 55
3.2.1 正截面受弯承载力计算 55
3.2.1 斜截面受剪承载力计算 55
3.2.3 裂缝宽度的验算 57
3.3 楼面板的计算与设计 58
3.3.1 荷载计算 58
3.3.2 弯矩计算 58
3.3.3 配筋计算 58
3.4 楼梯计算与设计 59
3.4.1 踏步计算 59
3.4.2 楼梯斜梁计算 60
3.4.3 平台板计算 61
3.4.4 平台梁计算 62
3.5基础设计 63
3.5.1 作用于基础顶面上的荷载计算 63
3.5.2 基础地面尺寸和埋置深度 65
3.5.3 基础高度验算 65
3.5.4 基础底板配筋计算 68
第4章 结束语 70
参考文献 71
致 谢 72
绪论
在世界上的所有建筑中,住宅楼占据了最大的比例,可以说,住宅楼是人类最必不可缺的建筑类型。住宅楼需要有合理的建筑布局、要考虑人们使用的方便程度、还要有一定的经济适用性,更重要的是,住宅楼应该具备良好的安全性和一定的安全储备,在正常使用情况下,不应出现大范围的影响正常使用的破坏情况,在遇到地震或其他突发性灾难时,有着抗连续倒塌、抗坍塌的能力。
所有的混凝土结构,都必须在规范给定的材料、结构分析、构件布置比例等方面的要求下进行设计[1]。考虑到住宅楼的建筑特性,以及材料、施工、经济等多方面的因素,结构类型可以选择为钢筋混凝土框架结构。
由梁、柱组成的结构单元称为框架;全部竖向荷载和水平荷载由框架承担的结构体系,称为框架结构,框架结构主要用在住宅楼、办公楼、商场等生活中常见的房屋建筑,其结构构件类型少,设计、计算、施工都毕竟方便[2]。
设计过程涉及到多本规范,也有许多本科期间学过的专业课程,除了这些纸面知识,在做设计的过程中,还需要借助一些计算机软件来辅助设计,有:AUTO CAD、PKPM、天正建筑、结构力学求解器。利用CAD和天正建筑,可以绘制出建筑施工图,包括:底层和标准层的平面图、立面图、楼梯的剖面图;利用PKPM可以绘制出结构施工图,利用结构力学求解器,可以绘制出弯矩图、剪力图和轴力图。
第2章 设计资料及相应内力统计与组合
2.1 设计资料
工程名称:相悦公馆住宅楼建筑结构设计。
工程概况:工程建筑地点为四川省成都市锦江区,总建筑面积约为2600平方米,建筑总高为15.5m,建筑总层数为5层,各层层高为3.0m,室内外高差为0.45m。
结构平面布置如图2.1所示。
气候数据:基本风压
,基本雪压
[3]。

图2.1 结构平面布置图
地质条件:地面粗糙度类别为B类,基础场地类别为II类。
抗震设防:抗震烈度为7度,设计基本地震加速度为0.10g,设计地震分组为第三组[4]。
材料选择:
混凝土:框架梁、柱和楼面板采用C30混凝土,基础和楼梯采用C20混凝土。钢筋:框架梁、柱纵向受力普通钢筋,采用热轧钢筋HRB400,楼梯斜梁、平台梁中纵向普通受力钢筋和基础底板受力钢筋,采用HRB335 级,其余采用热轧钢筋HPB300[5]。墙体:240厚空心砌块填充墙,用1:2.5水泥砂浆砌筑,重度
。
2.2 结构选型
进行结构设计时,首先要选择各类结构的形式。结构选型是否合理,不但关系到是否满足使用要求和结构受力是否可靠,而且也关系到是否经济和是否施工方便等问题。结构选型的基本原则[6]是:
满足使用要求;受力性能好;施工简便;经济合理。
结构选型涉及的内容较多,应根据建筑的重要性、设防烈度、房屋高度、场地、地基、基础、材料和施工等因素,经技术、经济条件比较综合确定。根据上述结构选型基本原则,本工程选择如下结构类型:
结构体系:采用钢筋混凝土现浇框架结构体系。
屋面结构:采用现浇钢筋混凝土屋盖,刚柔性相结合的屋面,屋面板厚120mm。
楼面结构:全部采用现浇钢筋混凝土楼盖,板厚120mm。
楼梯结构:采用钢筋混凝土的梁式楼梯。
2.3 梁柱截面尺寸估算
梁的最小截面高度:
[7],其中Ɩ0为柱与柱或柱与墙之间的距离。
根据结构计算简图,Ɩ0取轴线间的最大值,其最大值为6000mm。
有
,
因此,选取梁高度为600mm。
矩形截面梁的高宽比
一般取用2.0~2.5,据此选取梁宽度b=300mm。
最终,梁的截面尺寸
。
框架柱截面一般采用方形,截面尺寸一般取
,其中H为层高。
根据结构计算简图,底层的层高最大,其H的最大值为4450mm。
有
。
柱的高宽比
可取2.0,由于选择方形柱,
,取
因此选取柱截面尺寸
。
2.4 确定计算简图
不同的楼面结构与框架梁的连接构造不同,在现浇楼面中,楼面板的钢筋与框架梁的钢筋交织在一起,混凝土同时浇灌,整体性较好[8]。在计算框架梁的截面惯性矩时,要考虑楼面板与梁连接使梁的惯性矩增加的有利影响。
为简化计算,当采用现浇楼面时,边框架梁的惯性矩取
。其中,
为梁按矩形截面计算得到的惯性矩,
。梁的线刚度
,其中E为混凝土的弹性模量,l为框架梁的计算跨度[6]。
对于左边跨梁,即A-B轴间框架梁,有

对于右边跨梁,即B-C轴间框架梁,有

对于底层柱,有

对于标准层柱,有

令
,则其余各杆件的相对线刚度为
,
,
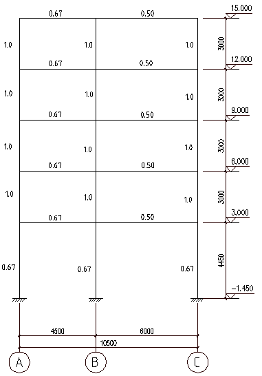
框架各构件在计算简图中均用单线条代表,各单线条代表各构件形心轴所在位置线。因此,梁的跨度等于该跨左、右两边柱截面形心轴线之间的距离。为简化起见,底层柱高可从基础顶面算至楼面标高处,中间层柱高可从下一层楼面标高算至上一层楼面标高,顶层柱高可从顶层楼面标高算至屋面标高[7]。
取②轴上的一榀框架进行设计计算,假定框架柱嵌固于基础顶面,框架梁与柱刚接。由于各层柱的截面尺寸不变,故梁跨等于柱截面形心轴线之间的距离[7]。
底层柱高从基础顶面算至二层楼面,基础顶面标高根据地质条件、室内外高差,定为-1.45m,首层层高为3.9m,故底层柱高4.45m。其余各层柱高从楼面算至上一层楼面(即层高),均为3.0m,计算简图如图2.2所示。

图2.2 框架计算简图
2.5 荷载统计
2.5.1恒载标准值
(1)屋面恒载标准值
防水层(刚性):30厚C20细石混凝土防水 
防水层(柔性):三毡四油铺小石子 
结构层:120厚现浇钢筋混凝土板 
抹灰层:10厚混合砂浆 
找平层:15厚水泥砂浆 
保温层:80厚矿渣水泥 
找坡层:40厚水泥石灰焦渣砂浆3‰找平
合计 
(2)楼面恒载标准值
大理石面层,水泥砂浆擦缝
30厚1:3干硬性水泥砂浆,面上撒2厚素水泥 
水泥浆结合层一道
以上是毕业论文大纲或资料介绍,该课题完整毕业论文、开题报告、任务书、程序设计、图纸设计等资料请添加微信获取,微信号:bysjorg。
相关图片展示:







课题毕业论文、开题报告、任务书、外文翻译、程序设计、图纸设计等资料可联系客服协助查找。
