星云公寓楼建筑结构设计毕业论文
摘 要
本文借助天正软件,pkpm软件以及结构力学,振动力学,房屋建筑学,土力学等力学知识对总面积约为3400平凡米的5层星云公寓住宅进行设计。
设计的内容主要包括建筑设计和结构设计两大部分。建筑设计主要包括平面布局;结构设计主要包括荷载统计与组合,截面设计与配筋计算两个部分。而荷载统与组合主要包括恒载和活载的统计及其组合;截面设计与配镜计算主要包括截面设计,楼面板设计,楼梯设计,和基础设计几部分。然后就是绘制结构图和施工图。
关键词:住宅;截面设计;楼面板设计;楼梯设计;基础设计
Abstract
This article through the days software PKPM software and structural mechanics, vibration mechanics, building architecture, such as soil mechanics mechanics knowledge of the total area of about 3400 nebula apartments in ordinary meters 5 layer design.
The content of design mainly includes architectural design and structural design. Architectural design mainly includes plane layout. Structural design includes load statistics and combination, section design and reinforcement calculation.The load system and its combination mainly include the statistics of constant load and live load. Section design and mirror design calculation mainly include section design, floor design, stair design, and foundation design. Then the structure and construction drawings are drawn.
Keywords:Housing; Section design;Floor design; Stair design; Basic design
目 录
第1章 绪论 1
第2章 内力计算与组合 2
2.1设计资料 2
2.2结构选型 2
2.3梁柱截面尺寸估算 2
2.4计算简图的确定 3
2.5恒载标准值 4
2.6活载标准值 6
2.7竖向荷载下框架受荷总图 6
2.8风载标准值计算 11
2.9柱抗侧移刚度D的计算 12
2.10风载作用下位移的验算 13
2.11水平地震作用计算 13
2.12恒载标准值作用下的框架内力计算内力计算 15
2.12.1分配系数计算 15
2.12.2固端弯矩计算 18
2.12.3跨中弯矩计算 23
2.12.4框架梁柱剪力计算及剪力图 26
2.12.5框架轴力计算 28
2.13横向风荷载作用下的框架内力计算 29
2.13.1各柱反弯点处的剪力值计算 29
2.13.2各柱反弯点高度的计算 30
2.13.3框架各柱的杆端弯矩及梁端弯矩计算 31
2.13.4风荷载作用下框架柱轴力与梁端剪力计算 32
2.14活载标准值作用下的框架内力计算 35
2.15水平地震作用下的框架内力计算 38
2.16竖向荷载作用下的梁端弯矩调幅计算 42
2.17控制截面处内力值的计算 42
2.18内力组合 43
第3章 截面设计与配筋计算 48
3.1截面设计与配筋计 48
3.1.1 框架柱截面设计 48
3.1.2框架梁截面设计 49
3.1.2.2 斜截面受剪承载力计算 50
3.2楼面板设计 50
3.2.1荷载计算 50
3.2.2 配筋计算 50
3.3楼梯设计 51
3.3.1踏步计算 51
3.3.2楼梯斜梁计算 52
3.3.3 平台板计算 53
3.3.4平台梁计算 53
3.4基础设计 54
3.4.1作用于基础顶面上的荷载计算 54
3.4.2基础底面尺寸及埋置深度 55
3.4.3基础高度验算 56
3.4.4基础底板配筋计算 57
第4章 结束语 59
参考文献 60
致 谢 61
- 绪论
本设计是对一个5层高,约3400平方米的公寓住宅进行设计,对于公寓住宅,主要是建筑要对称设计,这样方便管理;更讲究舒适性,功能的完备性、服务和结构的合理行。目前我国主要采用框架结构为主要结构,所以本设计也是用框架结构进行设计。
框架结构的主要特点是空间分隔灵活,自重轻,节省材料;具有可以较灵活地配合建筑平面布置的优点,利于安排需要较大空间的建筑结构;框架结构的梁、柱构件易于标准化、定型化,便于采用装配整体式结构,以缩短施工工期;采用现浇混凝土框架时,结构的整体性、刚度较好,设计处理好也能达到较好的抗震效果,而且可以把梁或柱浇注成各种需要的截面形状。
设计中涉及使用天正软件,PKPM软件,结构力学求解器软件的使用,还涉及了《结构力学》,《土力学》,《房屋建筑学》,《混凝土结构设计原理》,《工程结构与抗震》等专业课程的基础知识。
此次设计的意义重大,也许也是最后一次在老师的指导下学习,专业所学决定了我们将来要从事的工作:就是运用我们所学的专业知识来指导将来的民用及工业建筑物的设计,施工,管理等各个环节。毕业设计的实质目的就是让我们深入了解了工程建设设计与施工的过程,对一般框架类型的房屋有更深刻的认识了解以及运用,以自己的课题出发,学会把所学的专业知识运用在设计中,从设计之中来提升自己的能力,获取间接经验。
第2章 内力计算与组合
2.1设计资料
- 工程名称:星云公寓楼建筑结构设计
- 建设地点:上海黄浦市
- 工程概况:总建筑面积约为3400平方米,建筑总高18.4m,建筑层数为5层,第一
层层高为3.7m,其余楼层层高为3.4m,女儿墙高为1.1m,室内外高差为0.45m具体
如2.1所示。

图2.1 结构平面布置图
- 气象质料:基本风压ω0=0.55kN/m2。
- 地质条件:地面粗糙度类别为B类,基础场地类别为Ⅱ类。
- 抗震设防:抗震烈度为7度。
- 材料选用:
混凝土:框架梁柱和楼面板全部采用C30的混凝土。
钢筋:HPB300,f y =270N/mm2,f yk =300N/mm2的热轧钢。
墙体:240的砌块,用1:1.25的水泥砂浆砌筑,重度为γ= 18kN/m3
2.2结构选型
按结构选型的基本原则:(1)满足使用要求;(2)受力性能好;(3)施工简便;(4)经济合理;在结合考虑设防烈度,房屋高度,场地级别,地基基础,施工材料等因素本工程选择如下的结构类型:
- 结构体系:采用钢筋混凝土现浇框架结构体系;
- 屋面结构:采用钢筋混凝土现浇屋盖,屋面板厚120mm;
- 楼面结构:采用钢筋混凝土现浇楼板,楼板厚120mm;
- 楼梯结构:采用钢筋混凝土梁式楼梯;
2.3梁柱截面尺寸估算
(1)梁的最小截面高度为h=(1/8-1/14)l0其中l0为柱与柱或柱与墙之间的距离,根据平面结构布置图,l0最大为5400mm,所以初定梁的高度为h=600mm,根据矩形截面的高宽比h/b=2.0~2.5故初定b=300mm。
(2)柱截面采用方形,截面尺寸b=(1/12~1/18)H,H为柱高,根据设计资料,H最大为5150mm,所以柱的截面尺寸初定为b=400mm。
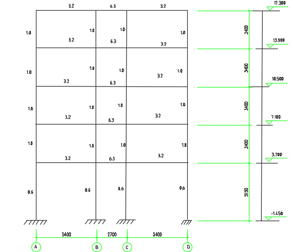
2.4计算简图的确定
不同的楼面结构与框架梁的链接结构不同,在现浇楼面中,楼面板的钢筋与框架梁的钢筋交织在一起,混凝土同时浇盖,整体性能好,在计算截面惯性矩时要考虑附加弯矩的影响,所以在现浇楼面中,中框架梁取I=2I0其中I0为截面惯性矩I0=bh3/12,梁的线刚度i=EI/l,E为混凝土弹性模量,l为框架梁的计算跨度。
左边跨梁,即A~B间的框架梁:
i左=2EI/l=2×3.0×107KN/m2×0.3m×(0.6m)3/(12×5.4)=6.0×104kNm
中跨梁,即B~C间的框架梁:
i中=2EI/l=2×3.0×107KN/m2×0.3m×(0.6m)3/(12×2.7)=12.0×104kNm
右边跨梁,即C~D间的框架梁:
i右=2EI/l=2×3.0×107KN/m2×0.3m×(0.6m)3/(12×5.4)=6.0×104kNm
底层柱:
i底=EI/l=3.0×107KN/m2×0.4m×(0.4m)3/(12×5.15)=1.2×104kNm
标准层柱:
i标=EI/l=3.0×107KN/m2×0.4m×(0.4m)3/(12×3.4)=1.9×104kNm
令 i标=1.0,则其余的梁柱相对 i标线刚度为:
i左=3.2;i中=6.3;i右=3.2;i底=0.6
选择③号轴线上的一榀框架进行设计计算,计算简图如下图2.2所示,其中底层柱高从基础顶面算起至二层楼面,基础顶面根据地质条件,室内外高差定为-1.45m首层高为3.7m则底柱高为5.15m,其余各柱高即为该层的层高,即均为3.4m。

图2.2框架计算简图
2.5恒载标准值
- 屋面恒载标准值:
防水层(刚性):30厚的C20细石混凝土防水 1.0kN/m2
防水层(柔性):三毡四油铺小石子 0.4kN/m2
结构层:120厚现浇钢筋混凝土板 0.12×25=3.0kN/m2
抹灰层:10厚混合砂浆 0.01×17=0.17kN/m2
找平层:15厚水泥砂浆 2×0.015×20=0.60kN/m2
保温层:80厚矿渣水泥 0.08×14.5=1.16kN/m2
找坡层:40厚水泥石灰礁渣砂浆3‰找平 0.04×14=0.56kN/m2
合计 6.89kN/m2
- 楼面恒载标准值
大理石面层,水泥砂浆擦缝
30厚1:3干硬水泥砂浆,面上撒2厚的水泥 1.16kN/m2
水泥浆结合成一道
结构层:120厚现浇钢筋混凝土板 0.12×25=3.0kN/m2
抹灰层:10厚混合砂浆 0.001×17=0.17kN/m2
合计 4.33kN/m2
- 梁自重
b×h=300mm×600mm
自重 25×0.3×(0.6-0.12)=3.6kN/m
抹灰层:10厚混合砂浆 0.01×〔(0.6-0.12) 0.4〕×17=0.15kN/m
合计 3.75kN/m
- 柱自重
b×h=400mm×400mm
自重 25×0.4×0.4=4kN/m
抹灰层:10厚混合砂浆 0.01×0.4×4×17=0.27kN/m
合计 4.27kN/m
(5)外墙自重
底层:
240厚空心砌块填充墙 (5.15-0.4-2.4)×0.24×18=10.15kN/m
水刷石外墙面 1.65×0.5=0.83kN/m
水泥粉刷内墙面 1.65×0.36=0.59kN/m
合计 11.57kN/m
标准层:
240厚空心砌块填充墙 (3.4-0.4-2.4)×0.24×18=2.59kN/m
水刷石外墙面 (3.4-0.4-2.4)×0.5=0.3kN/m
水泥粉刷内墙面 0.4×0.36=0.14kN/m
合计 3.03kN/m
(6)内墙自重
底层:
240厚空心砌块填充墙 (5.15-0.4)×0.24×18=20.52kN/m
水泥粉刷内墙面 4.15×0.36×2=3.0kN/m
合计 23.52kN/m
标准层:
240厚空心砌块填充墙 3.4×0.24×18=14.70kN/m
水泥粉刷内墙面 3.4×0.36×2=2.45kN/m
合计 17.15kN/m
(7)女儿墙自重
墙高1100mm 0.24×1.10×18=4.75kN/m
100mm的混凝土压顶 25×0.1×0.2 (1.10×2 0.2)×0.5=1.7kN/m
合计 6.45kN/m
2.6活载标准值
- 屋面和楼面活载标准值
不上人屋面:0.5kN/m2 楼面:2.0kN/m2
- 雪荷载: 0.55kN/m2
屋面活载与雪压不同时考虑,取较大值即0.55kN/m2
2.7竖向荷载下框架受荷总图
楼板采用整体现浇双向板结构,可以从每一区格板四角处作45°与平行于变长的中线相交,将整块板分为四块板,每个板块上的荷载传给相邻的支撑梁,因此双向板传递给支撑梁的荷载分布为:双向板长边支撑梁上荷载呈梯形分布;短边支撑梁上荷载呈三角形分布。支撑梁结构自重以及抹灰荷载任为均匀分布。
双向板支撑梁可按弹性理论或者塑性理论进行内力分析。
板传至梁上的三角形或梯形荷载按照以上方法近似简化为均布荷载,标准层板荷载传递示意图如图2.3所示。

图2.3 三角形及梯形荷载换算为等效均布荷载
以上是毕业论文大纲或资料介绍,该课题完整毕业论文、开题报告、任务书、程序设计、图纸设计等资料请添加微信获取,微信号:bysjorg。
相关图片展示:







课题毕业论文、开题报告、任务书、外文翻译、程序设计、图纸设计等资料可联系客服协助查找。
